用户名:密码:

您的位置:首页 › 设计师俱乐部 › 案例

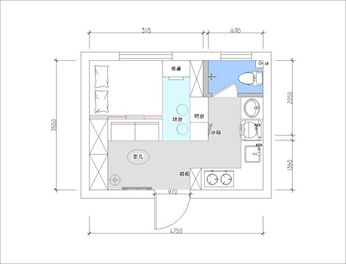
案例详细说明

小户型空间规划

2011-07-25

项目类别:居住空间  住宅 项目地点:   主设计师:卢胜东

« 前一页1下一页 »

所有评论

登录发表评论

用户名:密码:记住密码

卢胜东monkey室内设计师

最近访客